Redonner de l’unité
Cette maison rurale de petite dimension a traversé les âges, malgré les nombreux remaniments dont témoigne les différents matériaux visibles sur les façades. Le projet consiste à lui redonner un nouvel élan en lui redonnant un usage et une harmonie.
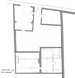
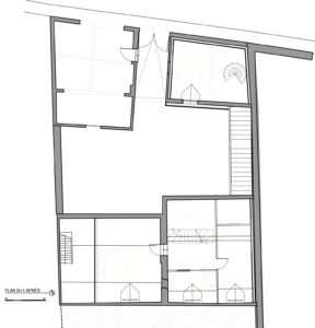
La distribution verticale est réimplantée en partie centrale pour optimiser la distribution des pièces de l’étage. Les façades sont recomposées en adaptant les percements aux nouveaux usages et en optant pour un bardage bois permettant l’harmonisation visuelle de l’ensemble.
L’ensemble des postes permettant l’amélioration de la performance énergétique de la maison sont traités (isolation verticale des murs par l’extérieur, menuiseries, ventilation, chauffage).










Réhabilitation d'une maison de pays
Mission d'étude architecturale
60280-Clairoix
150 m²
Bailleur
2025
13 mai 2025
Art de vivre