Se réchauffer autour d’un foyer
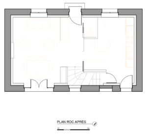
Cette maison de maître offre la proximité avec la région parisienne tout en étant connectée visuellement avec les plaines agricoles caractéristiques de cette région du nord de Paris. C’est ce qui en fait son attrait et sa valeur. Elle a bénéficié de nombreuses qualités à sa conception (grande hauteur sous plafond, parquets massifs, cheminées). La réhabilitation proposée consiste à restituer et renforcer ces dispositions historiques, tout en apportant le confort d’usage du 21ème siècle. Les connexions visuelles transversales avec le jardin sont ré-établies, des pièces d’eau et des rangements sont intégrés et une isolation adéquate est proposée. Ainsi, le patrimoine local s’en trouve enrichi et les relations humaines entre les habitants peuvent y croître sereinement.








Réhabilitation logement individuel
Mission d'étude architecturale
60810-Rully
97 m²
Particulier
2024
13 mai 2025
Art de vivre