Partager une cour commune
Dans cet ensemble bâti autour d’une cour intérieure, nous avons proposé au propriétaire de diviser les bâtiments existants en deux logements indépendants pour s’adapter à la demande principale du marché locatif de ce secteur.
Deux logements prennent place autour d’une cour commune : l’un se déploie sur deux niveaux et offre des vues traversantes entre la cour et le jardin, tandis que l’autre s’installe au rez-de-chaussée et est mono-orienté.
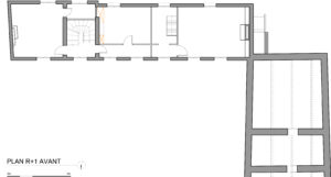
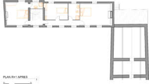
La réorganisation des espaces intérieurs nous a permis de répartir les usages de manière judicieuse. Ainsi, nous avons modifié l’accès en positionnant l’entrée au centre du plan et en organisant les espaces de vie de part et d’autre tout en reportant les espaces de service à l’extrémité du bâtiment








Deux logements en locatif
Mission d'étude architecturale
02600-Dommiers
160 m²
Bailleur
2019
1 août 2023
Logement groupé et collectif