Créer un espace d’accueil
Cette entreprise a vu ses effectifs grossir et nous a exprimé le besoin de réorganiser les espaces de travail de ses collaborateurs qui étaient devenus inconfortables.
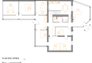
Lors de la phase de diagnostic initial, nous avons identifié que des connexions difficiles entre certains espaces entravaient le bon fonctionnement de l’entreprise. Le manque d’espaces d’accueil nuisait à la lisibilité de la fonction du bâtiment et à la qualité des échanges entre les collaborateurs.
Ainsi, nous avons proposé la création de 2 extensions, l’une sur le devant du bâtiment et l’autre sur l’arrière. Elles permettent de créer 2 nouvelles polarités qui fluidifient les circulations en les hiérarchisant. Un axe transversal vient ainsi relier l’espace d’accueil du public et des fournisseurs avec l’espace d’accueil des salariés. Ces extensions ont été conçues avec une structure porteuse en ossature bois comprenant une allège maçonnée avec un remplissage en brique et une imposte vitrée permettant les vues et l’apport de lumière naturelle.








Réhabilitation et extension de bureaux
Mission d'étude architecturale
60170-Pimprez
212 m²
Entreprise
2022
1 mars 2023
Locaux professionnels