Surplomber le grand paysage
Dans ce projet de création de deux bâtiments de logements étudiants, l’enjeu était de concevoir deux bâtiments à faible coût permettant d’offrir des espaces propices à l’étude. Afin de limiter les travaux de terrassement, nous avons choisi de nous adapter à la topographie existante en créant 3 plateformes successives dans la pente. L’approvisionnement en matériaux s’est fait depuis les carrières de pierre et les briquetteries locales pour minimiser les coûts de fourniture et maîtriser les délais d’approvisionnement.
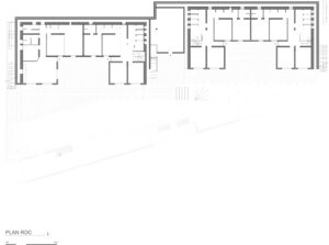
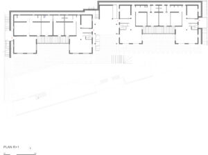
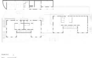
Les logements des étudiants ont été positionnés dans les deux niveaux inférieurs tandis que les espaces communs sont accessibles depuis le niveau haut où se situe l’accès principal. Cette disposition permet d’offrir des espaces communs généreux favorisant les interactions entre les étudiants.









